A Better Sense of Place

2013 September 17 (Tue)

Starting a front yard plan

I'm now fairly certain that previous picture is of a partridge pea. They've gotten bigger and look a lot like the one that I have growing in the back alley. There are also so many of them that I figure they can't possibly be silk trees.

I've been watering about every other day when it hasn't rained. I've wondered if I should water the area that gets direct sun more often. It doesn't look like anywhere near as many seeds have sprouted in it. Not sure what that's about. It's a good thing I have some extra seeds from the packet.

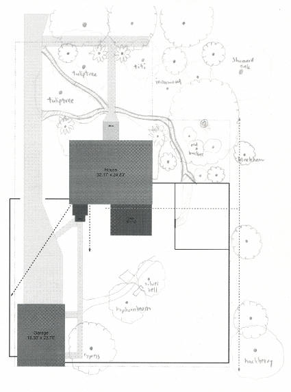
Oh, I've also started drawing plans for the front yard. It's a hot, grassy wasteland in the summer. I've picked out some trees I want to buy at this fall's plant sales. Since they take a while to grow, I'll need to also draw up plans for wildflowers and maybe grasses. As much as I don't like the thought, it will probably only be next year when I can implement any plan I come up with. They say to sow wildflowers in the fall, but maybe I'll force them to grow in the spring. We'll see. Or maybe I'll just sow some grass since that is sown in the spring. You never know.

Posts

Expand all

Tags

alley before caterpillars exotic fall flowers front yard laws neighbor planning plant id prep rain rain garden snow sowing spring sprouts summer winter